roots hotel, nashville

southern roots with a modern twist, spring 2025

Located in Nashville, TN, this boutique hotel project followed the design process start to finish.

We were given a blueprint of the building and the opportunity to choose our location. Naturally, I chose Music City and based my project around the wonderful and rich history of Nashville’s music and arts scene.

We researched the site and the building, created floor and furniture plans, came up with a concept, created elevations and sketches, and made final selections and renderings.

My goal for the space was to create a warm, familiar space that payed homage to the roots of country music, while also reflecting the values of southern hospitality and community.

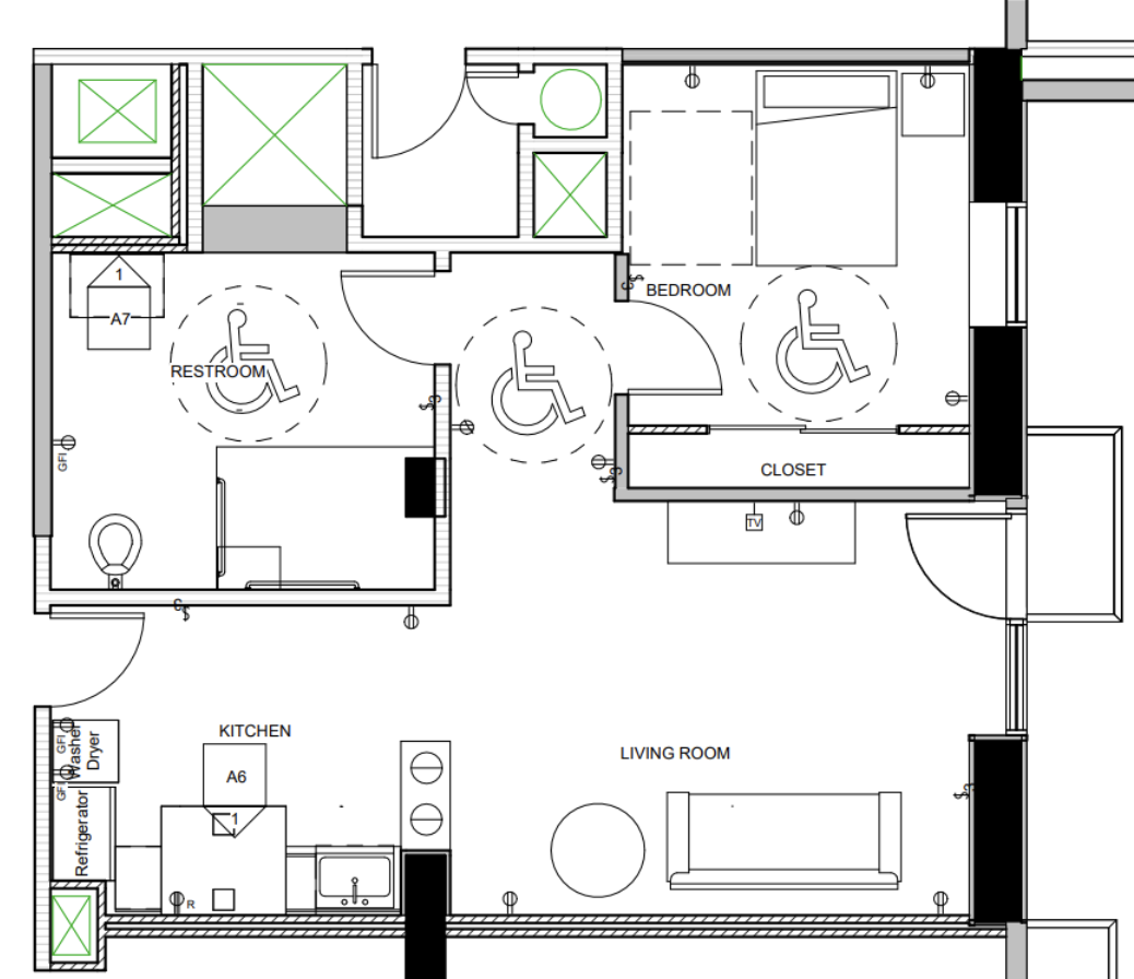
rendered floor plans & elevations

TOOLS USED IN PROJECT: Revit, SketchUp, hand sketching, Canva, Adobe Photoshop